Castelcucco - Nuovo appartamento tricamere con giardino
Rif. V4822 - A Castelcucco, in tranquilla palazzina di sole 6 unità, appartamento di nuova costruzione in vendita situato al piano terra e in posizione tranquilla e comoda ai principali servizi della zona.
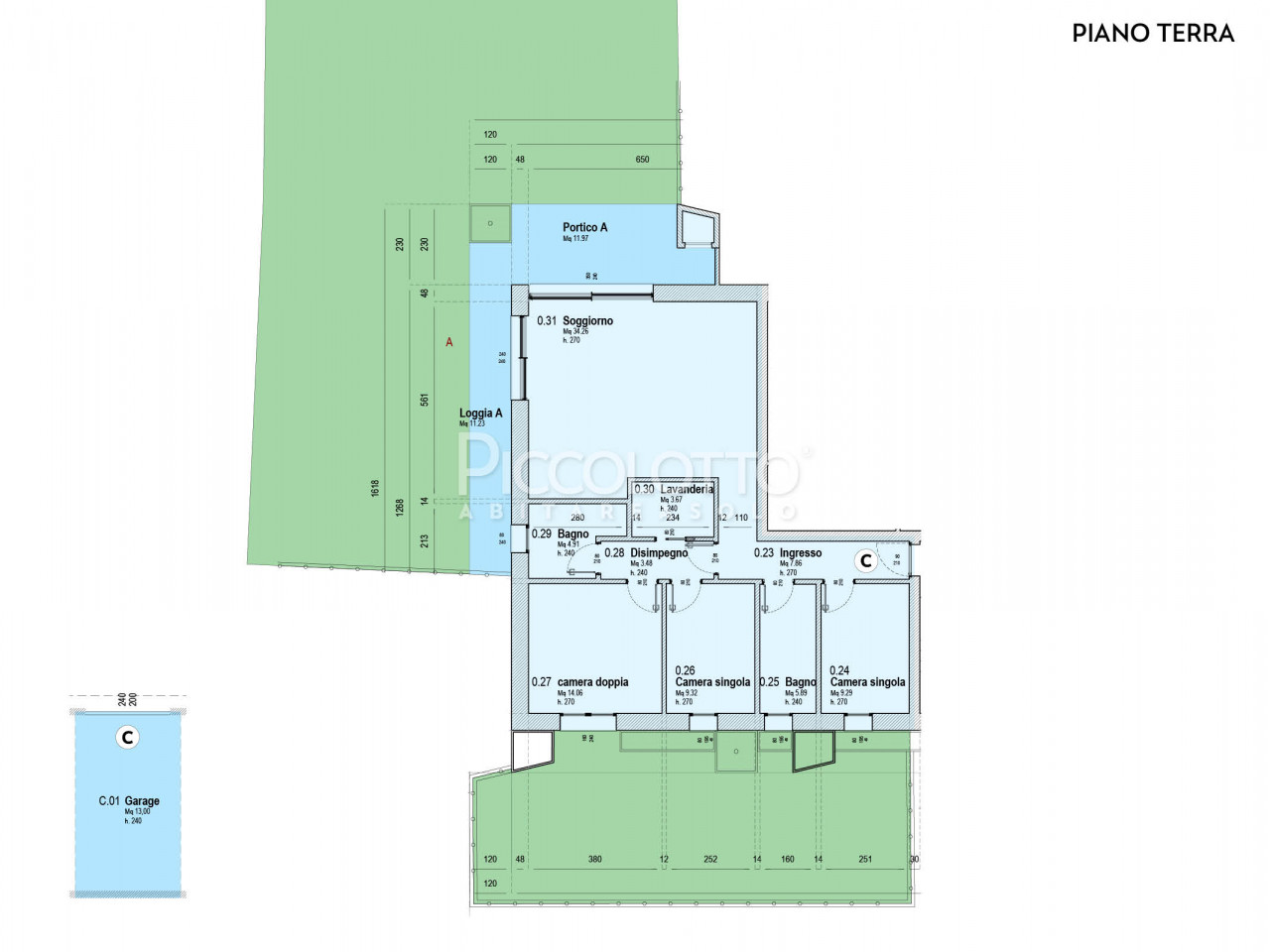
L'appartamento, ubicato interamente al piano terra con superficie di circa 150 mq, dispone di splendido giardino di oltre 200 mq e portico vivibile. Il portico affaccia sulla luminosa zona living di 34 mq con soggiorno-pranzo-cucina open space, caratterizzata dalle vetrate scorrevoli, 3 spaziose camere da letto, 2 bagni e servizio-lavanderia.
Completa la proposta posto auto coperto
Particolare attenzione alle moderne tecnologie per l'efficientamento energetico in Classe A4: impianto in pompa di calore ad alimentazione elettrica, riscaldamento a pavimento, impianto fotovoltaico. Le finiture interne sono personalizzabili secondo i gusti ed esigenze personali.
Al fine di tutelare la privacy, precisiamo che gli indirizzi presenti negli annunci sono puramente indicativi.
Per visionare l'immobile o ricevere ulteriori informazioni contattaci:
ABITARE AD ASOLO di Marino Piccolotto
Viale Tiziano 7/A
31011 ASOLO (TV)
Tel. +39 0423 55722
www.abitareadasolo.com










